1229 Purcells Cove Road
Halifax, NS B3P 1B3
imiller@corporaterealty.ca Phone (902) 479-3040
Fax (902) 477-8299

Properties for Lease

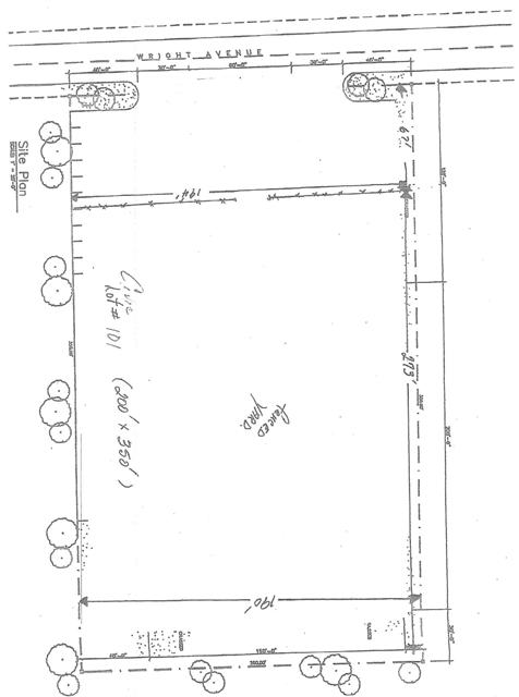
101 Wright Ave., Burnside Industrial Park
101 Wright Ave.
Land Description: 70,000 sq.ft.
Fenced. Large parking lot for tractor trailors and storage.
Lease Rate: Negotiable
Available Now

Return


This site is © to Corporate Realty Limited
Home Page | Properties for Sale | Properties for Lease | Vacant Land | Contact Information | Legal Information